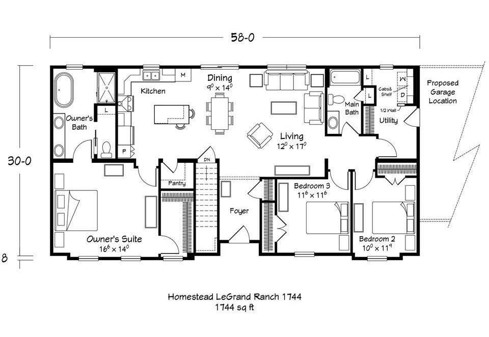
This floor plan is designed to offer a balance of comfort, functionality, and flexibility, making it easy to adapt to a variety of lifestyles and needs. With thoughtfully planned living spaces, efficient layouts, and customizable design options, each Corey’s Construction floor plan serves as a strong foundation for creating a home that feels uniquely yours.
As a turnkey modular home builder, Corey’s Construction coordinates the entire building process - from permitting and site preparation to foundation and home installation. While floor plan layouts provide a starting point, many features can be adjusted to better suit your preferences. Options such as layout modifications, room configurations, exterior details, and interior finishes allow you to personalize your home without starting from scratch.
This floor plan is built using factory-controlled construction, which helps ensure consistent quality, reduced weather-related delays, and a more predictable timeline compared to traditional stick-built homes. Once the home is completed in the factory, it is delivered to the site and set on a prepared foundation, allowing on-site work and factory construction to happen simultaneously.
Whether you’re planning to build on rural land, in a developing neighborhood, or on an existing lot, this floor plan offers flexibility to meet a wide range of needs. Explore the layout, envision how the spaces could work for your lifestyle, and connect with our team to learn more about customization options, pricing, and next steps.





