top of page
Have a Question? Ask Us!
FLOOR PLANS
Floor Plans
Top Selling Floor Plans
3D Tours
TURNKEY CONSTRUCTION
TURNKEY CONSTRUCTION
Building Process
GALLERY
GALLERY
Videos
EVENTS
RESOURCES
FAQ
Modular Home Blog
Testimonials
Our Collections
Financing
Service Area
ABOUT
ABOUT
Our Team
Contact
< Back
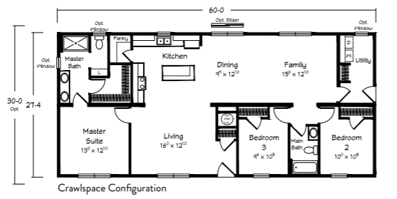
Erwin
Details
Size
1640
Bedrooms
3
Bathrooms
2
Floors
1
1800
House Style
Ranch
Series
Homestead
Collection
Homestead
bottom of page